Klanten beoordelen ons met een:
9.3
Bekijk onze beoordelingen
Vorige | Volgende

Walensingel 63a Middelburg

Bewaar object
Dit bedrijfsobject is door ons verhuurd

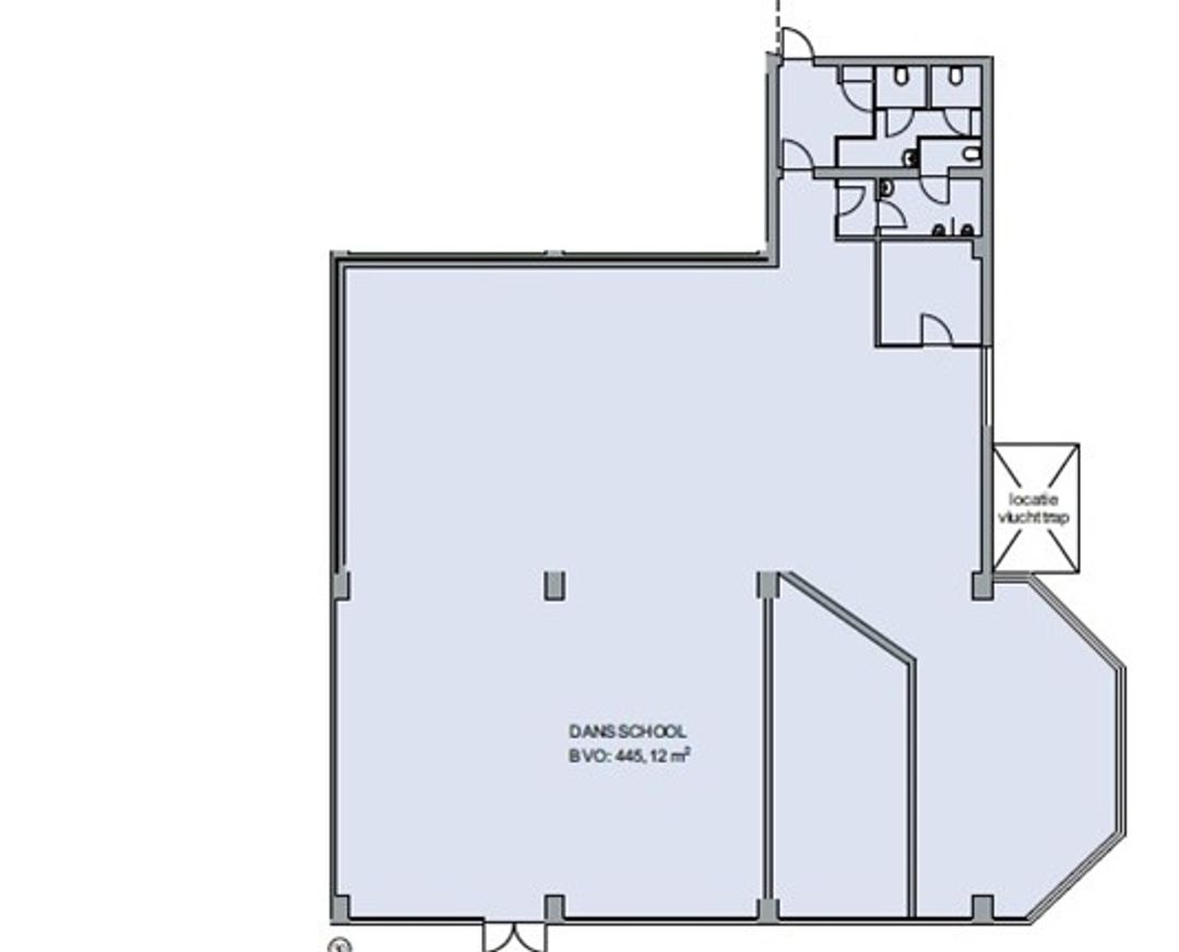
Omschrijving

Te Huur - Bedrijfsruimte van circa 445 m2 BVO die tot voor kort in gebruik was bij een dansschool.

De globale indeling is als volgt:
Entree aan voor- en achterzijde.
Grote open ruimte/zaal, horeca-gedeelte met bar, ruime berging, keuken en een toiletgroep.

Het pand is voorzien van een alarmsysteem.

De bestemming is "Cultuur en ontspanning" en daarmee in principe bestemd voor voorzieningen zoals: theater, sportschool, dansschool, muziekschool en museum.
Voorts is horeca tot en met categorie 2 (lichte en middelzware horeca) ter plaatse toegestaan, zoals is opgenomen in de Staat van Horeca-activiteiten. Deze staat is bij ons op te vragen.

Daadwerkelijke invulling is onder voorbehoud dat het bevoegd gezag en verhuurder daar ook mee instemmen.

Bij het gehuurde behoren ca. 8 parkeerplaatsen.

- De huurprijs bedraagt € 35.600 per jaar.
- BTW is niet van toepassing.
- Bij verhuur wordt een waarborgsom/bankgarantie verlangd van 3 maanden huur.
- Model huurovereenkomst: model kantoorruimte en overige bedrijfsruimte (ROZ 30-01-2015).
- Huurindexering: jaarlijks op basis van consumentenprijsindex (CPI).

Bezichtigingen vinden op afspraak plaats.

De ingangsdatum is in overleg.
Lees de volledige omschrijving

Kenmerken

Algemeen

Hoofdbestemming
bedrijfsruimte
Functies
bedrijfsruimte, horeca
Aanvaarding
In overleg

Details

Voorzieningen
mechanische ventilatie, toilet
In aanbouw
nee

Financieel

BTW servicekosten

Bedrijfsruimte

Bedrijfshal oppervlakte
445 m²
Bedrijfshal units vanaf
445

Horeca

Horeca oppervlakte
445 m²
Horeca verkoop vloeroppervlakte
380 m²
Bekijk alle kenmerken

Alle foto's

Kaart Walensingel 63a Middelburg

naar Walensingel 63a Middelburg
Op 5 minuten loopafstand Op 5 minuten fietsafstand

Deel dit object